Монолитная ж/б плита (бетон М350, толщина 300мм, арм. ø12мм, армирование в 2 ряда с ячейкой 200х200мм, песчаная подушка 300мм). Устройство гидроизоляции фундаментной плиты. Укладка геотекстиля. Ленточный монолитный ж/б фундамент под террасу, гараж (при наличии).
Инженерные коммуникации
Ввод канализации на 1-ом этаже строения (вывод за границу фундамента на 1м). Ввод воды в бойлерную (прокладка ПНД трубы и отвод до точки подключения). Монтаж закладных труб под электрокабеля.
Стены и перегородки
Наружные несущие стены из газосиликатного блока D500 толщиной 300мм. Армирование по ГОСТ. Кладка блоков на специализированный клей. Внутренние несущие стены из газосиликатного блока D500 толщиной 300мм. Армирование по ГОСТ. Кладка блоков на специализированный клей.
Межэтажное перекрытие
Сборное ж/б перекрытие из плит. Устройство монолитных ж/б участков в нестандартных местах. Возможна замена на монолитные ж/б перекрытие.
Чердачное перекрытие
Деревянное балочное перекрытие. Обработка древесины огнебиозащитным составом. Утепление 200мм плитами из минеральной ваты и монтаж защитных мембран. Монтаж деревянной обрешетки 25х100мм по низу чердачного перекрытия.
Кровля
Стропильная система (стропило 200х50мм, контробрешетка 25х50 мм, обрешетка 100х25 мм, мембрана 3-х слойная супердиффуз). Обработка древесины огнебиозащитным составом. Покрытие крыши «как на фото» Подшивка свесов софитами: НЕТ Устройство водосточной системы: НЕТ Утепление кровли: НЕТ
Наружная отделка
НЕТ
Лестница и крыльцо
Входные монолитные ж/б лестницы и крыльцо (по проекту).
Проектная документация
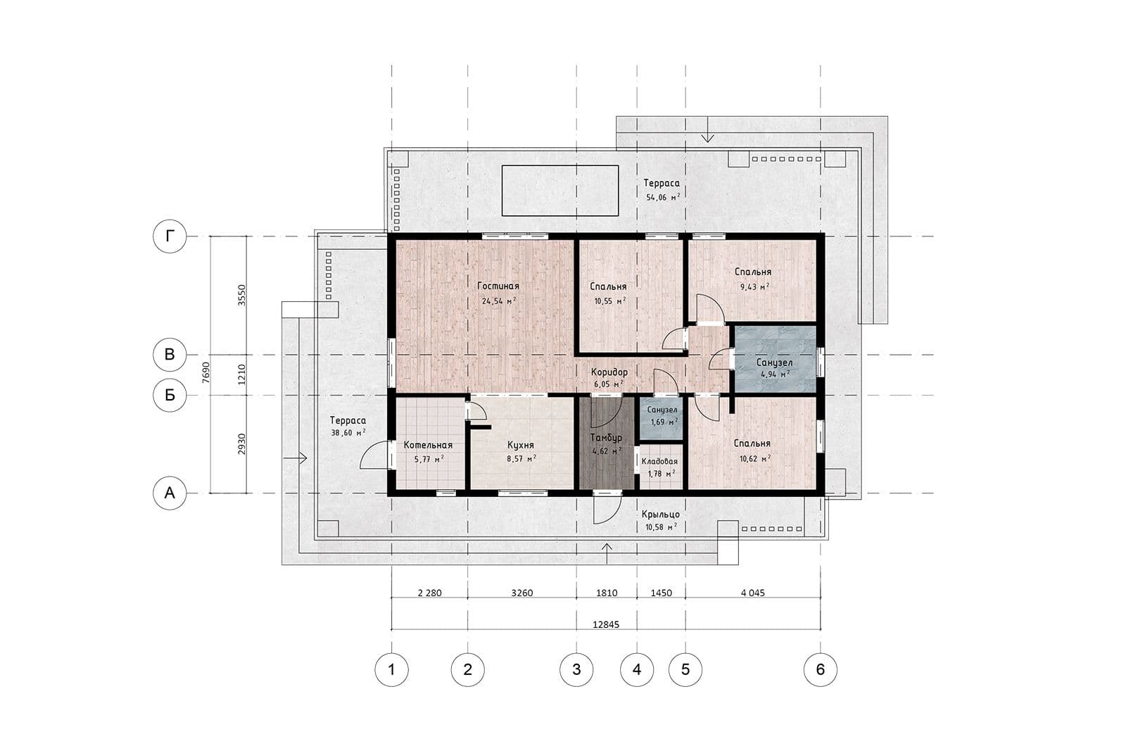
Разделы проекта: Титульный лист, Общие данные, Фасады, разрезы, 3D виды, План фундамента, План этажей, План развертки скатов кровли, План перекрытия 1 этаж, План перекрытия 2 этаж, План раскладки стропильной системы, Спецификация проемов.
Стоимость 5 531 360 руб.
Это базовая комплектация. Всё, что в неё входит, перечислено выше. Можем произвести расчёт дополнительных работ, исходя из ваших конкретных потребностей. Для этого необходимо встретиться и обговорить детали. Держим конкурентные цены по всем позициям.
Дополнительные услуги
Доработка проекта
Бесплатно при заключении договора на строительство
Новый проект дома
От 350 руб./м2, в зависимости от технического задания
Дизайн интерьера
От 1000 руб./м2, в зависимости от состава проекта
Образец договора строительного подряда
Образец типового проекта
Доработка готового проекта
Внесение изменений в данный проект обойдётся не дороже 300 руб./м2. Эта сумма начисляется и оплачивается при подписании договора на проектирование.
После окончания данных работ, занимающих обычно не более нескольких рабочих дней, подписывается договор на строительство.
При оплате строительных работ эта сумма будет учтена. Таким образом, затраты на внесение коррекций в проект мы возьмём на себя.
Создание нового проекта
Это может быть проект, разработанный с чистого листа. Но как правило, уже есть на примете какой-то дом или планировка, которые приглянулись.
Времени потребуется больше, нежели доработка готового проекта, соответственно и стоимость работ будет выше.
При подписании договора на строительство в качестве бонуса сделаем скидку на проектирование.
В нашем штате молодые амбициозные архитекторы, которым реально интересно создавать классные проекты.